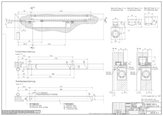
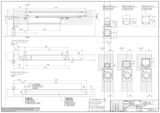
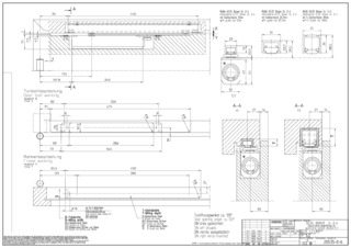
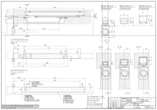
E-गाइड रेल Boxer * उत्तोलकों और इलेक्ट्रिक होल्ड-ओपन युनिट के साथ
- प्रचालन वोल्टेज 24 V DC
- विद्युत-मैकेनिकल होल्ड ओपन युनिट का होल्ड-ओपन बल परिवर्तनशील समायोजन के साथ
- पेंच से जोड़े हुए स्लाइडिंग ब्लॉक के साथ
अनुप्रयोग के क्षेत्र
- सिंगल लीफ दरवाजे
- एकीकृत स्थापना
- एकीकृत होल्ड-ओपन यूनिट के साथ होल्ड-ओपन प्रणालियां
- दाएं और बाएं सिंगल-एक्शन दरवाजे
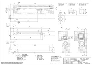
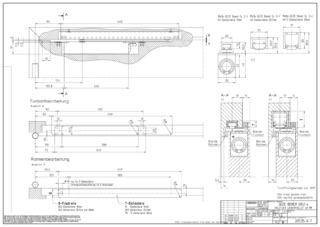
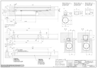
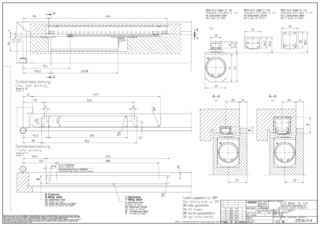
उत्पाद विनिर्देश
| E-गाइड रेल Boxer | |
| इनपुट वोल्टेज | 24 V DC |
| इलेक्ट्रिक पॉवर खपत | 1 W |
| ड्यूटी रेटिंग | 100 % |
| अवशिष्ट तरंग | 20 % |
| आईपी रेटिंग | IP43 |
| मानक अनुरूपता | EN 1155 |
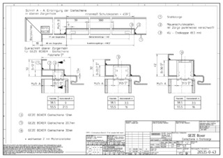
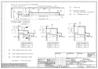
| लम्बाई | 440 mm |
| चौड़ाई | 31 mm |
| ऊँचाई | 30 mm |
| होल्ड-ओपन यूनिट | इलेक्ट्रिक |
| होल्ड-ओपन फंक्शन ऑन / ऑफ़ किया जा सकता है | हाँ |
| होल्ड-ओपन फंक्शन ओवरराइड किया जा सकता है | हाँ |
| होल्ड-ओपन क्षेत्र | 80 ° - 120 ° |
| फ्लेक्सीबल ओपनिंग लैचिंग | हाँ |
डाउनलोड
LABELLING OBLIGATION: © GEZE GmbH
वैरिएंट और सहायक सामान
* दिखाए गए उत्पाद के संबंध में सूचना
ऊपर उल्लेखित उत्पादों के रूप, प्रकार, विशेषताएँ और कार्य (डिजाइन, विमाएं, उपलब्धता, अनुमोदन, मानक, आदि) देश के अनुसार भिन्न-भिन्न हो सकते हैं। प्रश्न पूछने के लिए कृपया GEZE के संपर्क व्यक्ति से संपर्क करें या हमें लिखें E-Mail .