Perlan 140 set for timber leaves

Complete clip-on cover set 100 * Clip-on cover for covering Perlan door fitting systems

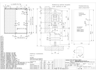
Set clip-on cover 100 configured Accessories for covering of the Rollan and Perlan sliding door systems
  • Clip panel offers a quick and convenient way of facing without time-consuming screwing
  • Perlan fitting technology (such as Duosync, Perlan AUT-NT) is covered behind the clip panel, creating a slim, elegant look from the front
  • Clip fastening either directly on the Perlan track or for larger door thicknesses via additional spacer brackets
Contact us

Application Areas

  • Covering and facing of all Perlan interior fittings variants
  • For all 1- or multiple-leaf and synchronous sliding doors
  • For wall, ceiling and fixed panel attachment

Technical data

Complete clip-on cover set 100
Leaf material Glass, Plastic, Metal, Wood
Type of installation Wall, Ceiling
Telescope Yes
Automated Yes
Side panel Yes

Downloads

Contact

GEZE Central +91-444-061-69-00