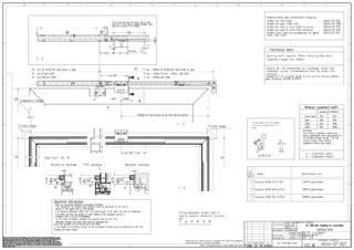
OL 90 N

Scissors OL 90 N * Scissors OL 90 N without leaf bracket

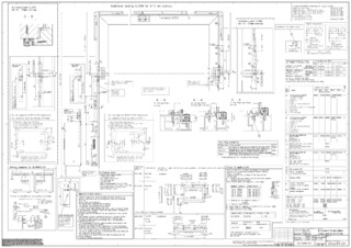
OL 95 open Surface-mounted Slimline fanlight opener for vertically installed rectangular windows with an opening width of 220 mm
  • Achieves the full opening width of 170 mm for all leaf heights
  • Integrated leaf locking mechanism in the scissors ensures secure locking
  • Flexible use in combination of variants of leaf brackets
Contact us

Application Areas

  • Inward-opening bottom-hung leaves
  • For rectangular windows
  • Create specialised shapes like angled, triangular, round and segmental arch windows
  • Installation on wooden, PVC or metal windows
  • Suitable for overlap heights of 0-25 mm
  • Flexible right/left use/operation
  • Frame installation

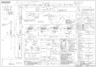
Variants & Accessories

Contact

GEZE Central +91-444-061-69-00